**VERKOCHT**Luxueuze nieuwbouwvilla met handelsruimte op 17 aren. Hoogwaardig afgewerkt 4 slpks en 2 badks + handelsruimte/hobbyruimte
Villa
Hoogstraat 174, 3665 As
Ref: spir625
4 slaapkamers
2 badkamers
443m2 woonopp.
1729m2 grondopp.
EPC: -5 kWh/m2
Bouwjaar: 2024
Omschrijving
**VERKOCHT**
Hoogwaardige afwerking, energieneutrale woning.
(volledige beschrijving op
https://www.dynamicinvest.be/nl/te-koop/woning/as-3665/625 )
Indeling :
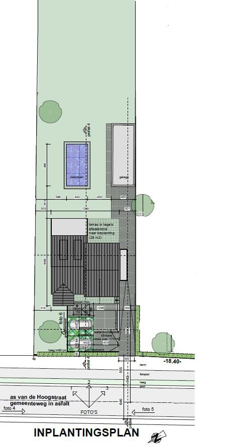
verdieping -1 ( straatniveau) : handelsruimte met parking
open ruimte met inkombalie, gastentoilet, klein apart bureel, 2 ruime behandelruimtes
technische ruimte ( geothermische warmtepomp, buffervat 1000 liter)
verdieping 0 (tuinniveau) : prachtige inkomhal met gastentoilet, open leefruimte met zicht op groen, prachtige keuken met alle voorzieningen, overdekt terras, apart bureau
Verdieping 1: prachtige trap in notelaar, overloop met apart toilet, hoofdslaapkamer met dressing en rechtstreeks toegang tot de hoofdbadkamer ( ligbad, inloopdouche en dubbel lavobomeubel), slaapkamer 2 en 3 zijn verbonden door een gemeenschappelijke douchekamer met lavobomeubel, mooie 4de slaapkamer met zicht op de tuin.
Ruime zolderruimte, te bereiken via zolderluik ( er is door de architect een ruimte voorzien om een vaste trap naar de zolders te voorzien 60m² + 30m²)
Aparte garage met tuinberging (54 m²)
De woning is voor 95% afgewerkt : volgende items dienen nog afgewerkt te worden ; balustrade voor het pad naar de voordeur + tegelwerken pad, klinkers oprit naar boven ( 12mx3m), plinten verdieping 1, zolderluik met trap plaatsen, airco-units handelsruimte ( voorbereidende werken zijn reeds uitgevoerd), inbouwkasten in de wasplaats/berging , vast TV-meubel, inbouwkasten bovenverdieping, kaleien van de rechtergevels (een bestek van deze werken is beschikbaar op aanvraag)
EXTRA'S :
Domoticasysteem van Loxone doorheen de gehele woning en handelsruimte
Geothermische warmtepomp, buffervat 1000 liter, fotovoltaïsche installatie aantal panelen x36, waterrecuperatie , regenput van 20.000 liter , vloerverwarming doorheen de hele woning ( verwarmen en koelen)
Absoluut de moeite waard!
Verkoop onder het BTW-stelsel
Hoogwaardige afwerking, energieneutrale woning.
(volledige beschrijving op
https://www.dynamicinvest.be/nl/te-koop/woning/as-3665/625 )
Indeling :
verdieping -1 ( straatniveau) : handelsruimte met parking
open ruimte met inkombalie, gastentoilet, klein apart bureel, 2 ruime behandelruimtes
technische ruimte ( geothermische warmtepomp, buffervat 1000 liter)
verdieping 0 (tuinniveau) : prachtige inkomhal met gastentoilet, open leefruimte met zicht op groen, prachtige keuken met alle voorzieningen, overdekt terras, apart bureau
Verdieping 1: prachtige trap in notelaar, overloop met apart toilet, hoofdslaapkamer met dressing en rechtstreeks toegang tot de hoofdbadkamer ( ligbad, inloopdouche en dubbel lavobomeubel), slaapkamer 2 en 3 zijn verbonden door een gemeenschappelijke douchekamer met lavobomeubel, mooie 4de slaapkamer met zicht op de tuin.
Ruime zolderruimte, te bereiken via zolderluik ( er is door de architect een ruimte voorzien om een vaste trap naar de zolders te voorzien 60m² + 30m²)
Aparte garage met tuinberging (54 m²)
De woning is voor 95% afgewerkt : volgende items dienen nog afgewerkt te worden ; balustrade voor het pad naar de voordeur + tegelwerken pad, klinkers oprit naar boven ( 12mx3m), plinten verdieping 1, zolderluik met trap plaatsen, airco-units handelsruimte ( voorbereidende werken zijn reeds uitgevoerd), inbouwkasten in de wasplaats/berging , vast TV-meubel, inbouwkasten bovenverdieping, kaleien van de rechtergevels (een bestek van deze werken is beschikbaar op aanvraag)
EXTRA'S :
Domoticasysteem van Loxone doorheen de gehele woning en handelsruimte
Geothermische warmtepomp, buffervat 1000 liter, fotovoltaïsche installatie aantal panelen x36, waterrecuperatie , regenput van 20.000 liter , vloerverwarming doorheen de hele woning ( verwarmen en koelen)
Absoluut de moeite waard!
Verkoop onder het BTW-stelsel
Ruimtelijke ordening
| Bouwvergunning | Ja |
| Recente bestemming | Woongebied |
| Dagvaardingen | Nee |
| Voorkooprecht | Nee |
| Verkavelingsvergunning | Nee |
| Effectief overstromingsgevoelig | Nee |
| Mogelijk overstromingsgevoelig | Nee |
| Afgebakend overstromingsgebied | Nee |
| Afgebakende oeverzone | Nee |
| Risicozone voor overstromingen | Nee |
| G-score | A |
| P-score | A |
EPC gegevens
| EPC n° | 71002-G-OMV_2022089076/EP17609/A001/D01/SD001 |
| Energieklasse label |
A+
|
| EPC waarde | -5 kWh/m² |
-5
Comfort
| Keukentype | Hyper-Geïnstalleerd |
| Badkamer type | Ingericht |
| Beschrijving verwarming | geothermische warmtepompinstallatie met vloerverwarming voor warmte en koeling |
| Vloerverwarming | ja |
| Zonnepanelen | ja |
| Warmtepomp | ja |
| Beglazing | Driedubbel glas |
| Domotica | ja |
| Dressing | ja |
| Zwembadtekst | vergunning voor zwembad aanwezig |
| Aansluiting elektriciteit | ja |
| Aansluiting riolering | ja |
| Aansluiting Internet | ja |
| Aansluiting waterleiding | ja |
| Waterput | ja |
| Inhoud waterput (liter) | 20000 |
Financiële info
| Prijs | Info op kantoor |
Overige Info
| Vrij op | bij akte na betaling |
| Tuin aanwezig | ja |
| Orientatie tuin | ZO |
| Tuin inrichting | Enkel Gazon |
| Aantal douches | 2 |
| Aantal garages | 1 |
| Aantal carports | 2 |
| Aantal parkeerplaatsen | 4 |
| Instapklaar | ja |
| Fietsenberging | ja |
Bebouwing
| Bebouwing | open |
| Bouwjaar | 2024 |
| Aantal slaapkamers | 4 |
| Aantal badkamers | 2 |
| Aantal wc's | 3 |
| Nieuwbouw | ja |
| Staat | Nieuwe staat |
| Grond oppervlakte | 1729 m² |
| Bouw oppervlakte | 533 m² |
| Woonoppervlakte | 443 m² |
| Oppervlakte Gelijkvloers | 158 m² |
| Oppervlakte 1e verdieping | 149 m² |
| Oppervlakte 2e verdieping | 136 m² |
| Oppervlakte 3e verdieping | 90 m² |
| Handelsoppervlakte | 158 m² |
| Aantal gevels | 4 |
| Elektrisch keuringsattest | Verkregen, conform |
| Passieve woning | ja |
| Lage energiewoning | ja |
| Renovatieplicht | Nee |
Alle aanbiedingen gelden onder voorbehoud van fouten, eerdere verkoop, prijswijzigingen of vergetelheid.